Architectural Working Drawings
Scroll Down
The Foundation of Construction: Working Drawings
At Grazign, we specialize in creating precise and comprehensive working drawings—the essential blueprints that bridge the gap between design and construction. These detailed documents serve as the backbone of any building project, ensuring every detail is communicated clearly to builders, contractors, and engineers.
Working drawings are more than just technical documents; they are the lifeline of construction, transforming abstract ideas into tangible structures. From residential homes to commercial complexes, our working drawings provide the clarity and accuracy needed to bring your vision to life.
Why Working Drawings Matter
- Blueprint for Success: They act as a step-by-step guide for construction, ensuring every detail is executed as planned.
- Collaboration Made Easy: They serve as a common reference point for architects, engineers, contractors, and clients, fostering seamless communication.
- Risk Mitigation: By identifying potential issues early, they help avoid costly mistakes and delays during construction.
- Future-Proofing: They provide a permanent record of the building’s design, useful for renovations, maintenance, or expansions.
What Are Working Drawings and its Types ?
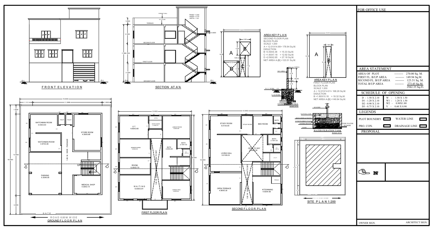
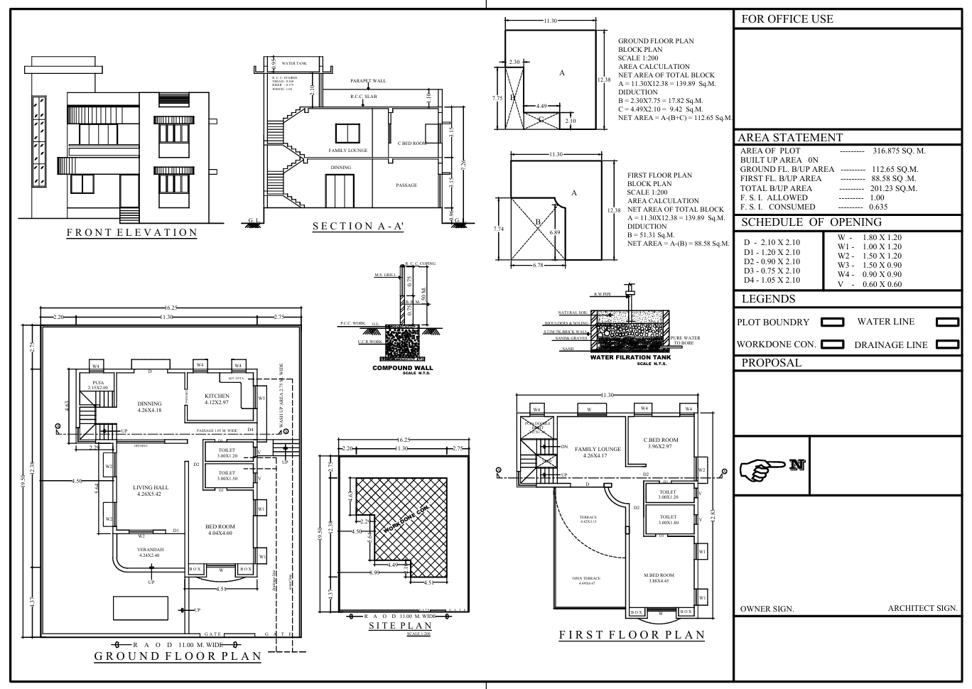
Working drawings, also known as construction or technical drawings, are detailed plans that communicate the design, dimensions, and specifications of a building or structure. They act as a universal language for architects, engineers, contractors, and builders, ensuring everyone is aligned throughout the construction process.
- Architectural Drawings
- Structural Drawings
- Electrical Drawings
- Plumbing Drawings
- Floor Plans: Show the layout of rooms, walls, doors, and windows.
- Elevations: Provide exterior views of the building, detailing height, shape, and façade design.
- Sections: Vertical or horizontal cutaway views that reveal internal construction details.
- Details: Focus on specific elements like joinery, finishes, or structural connections.
- Foundation Plans: Outline the design and dimensions of the building’s foundation.
- Beams and Columns: Detail the size, shape, and placement of structural supports.
- Roof Framing Plans: Specify the layout and structure of the roof.
- Detail Drawings: Highlight critical connections and reinforcements.
- Single Line Diagrams: Show the overall layout of the electrical system.
- Power Plans: Indicate the placement of outlets, switches, and fixtures.
- Lighting Plans: Detail the type and placement of lighting fixtures.
- Schematic Diagrams: Provide a simplified representation of electrical circuits.
- Plumbing Plans: Display the layout of pipes, fixtures, and connections.
- Isometric Drawings: Offer a 3D view of the plumbing system.
- Fixture Details: Include dimensions and installation specifications for sinks, toilets, and showers.
- Riser Diagrams: Show the vertical distribution of plumbing pipes.
Understand Your Vision
We begin by collaborating with you to understand your design goals, project requirements, and any specific challenges.
Gather and Analyze Data
Our team collects all necessary measurements, site details, and design specifications to create a solid foundation for the drawings.
Draft Initial Plans
Using advanced CAD software, we create preliminary drafts, including floor plans, elevations, and structural details.
We share the initial drafts with you for feedback, making adjustments to ensure the drawings align perfectly with your vision.
Review, Refine & Deliver
Changes are incorporated and once approved, we finalize the working drawings, ensuring they include all necessary details, schedules, and specifications.
Explore Our Work


