2D Drawings and Floor Plans
Scroll Down
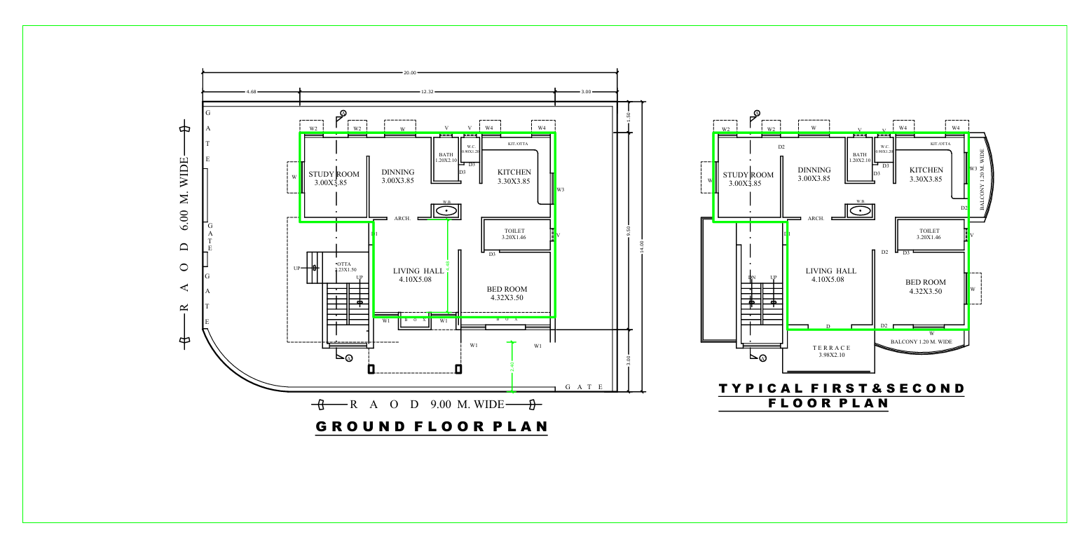
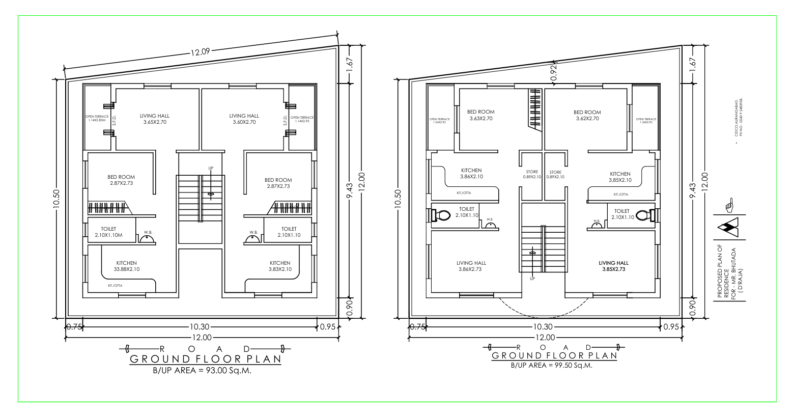
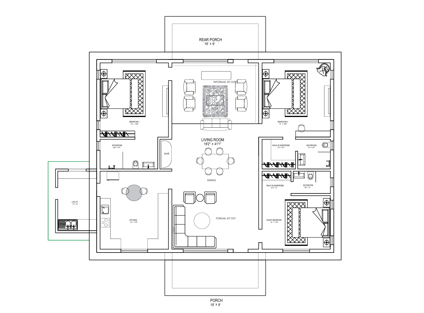
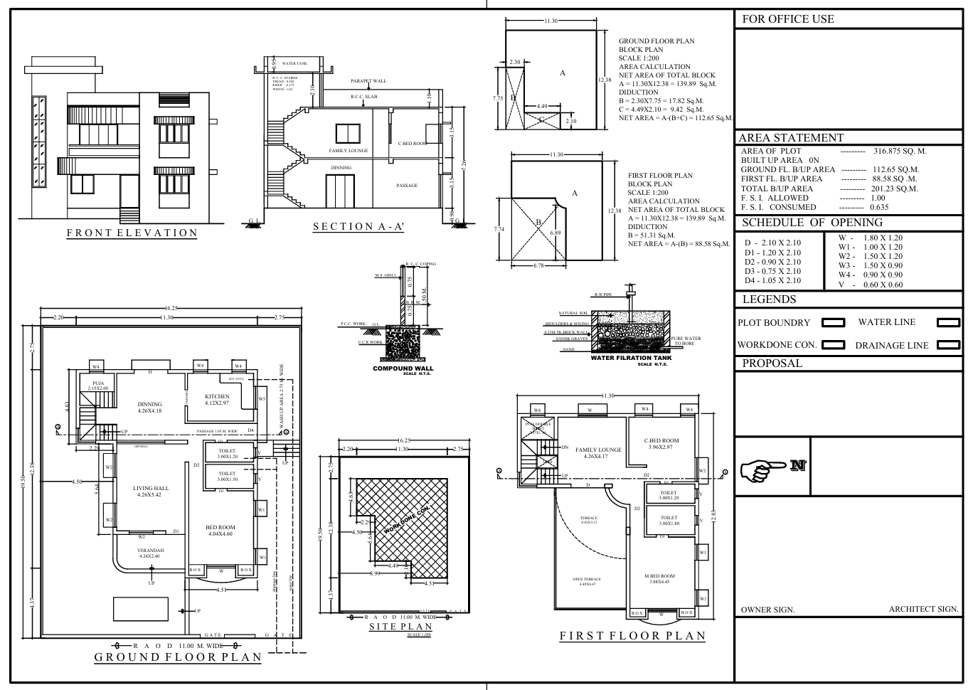
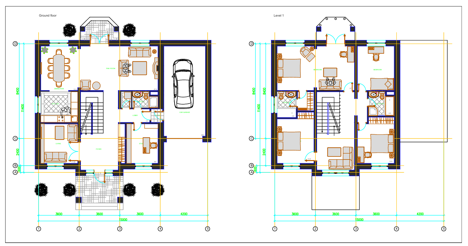
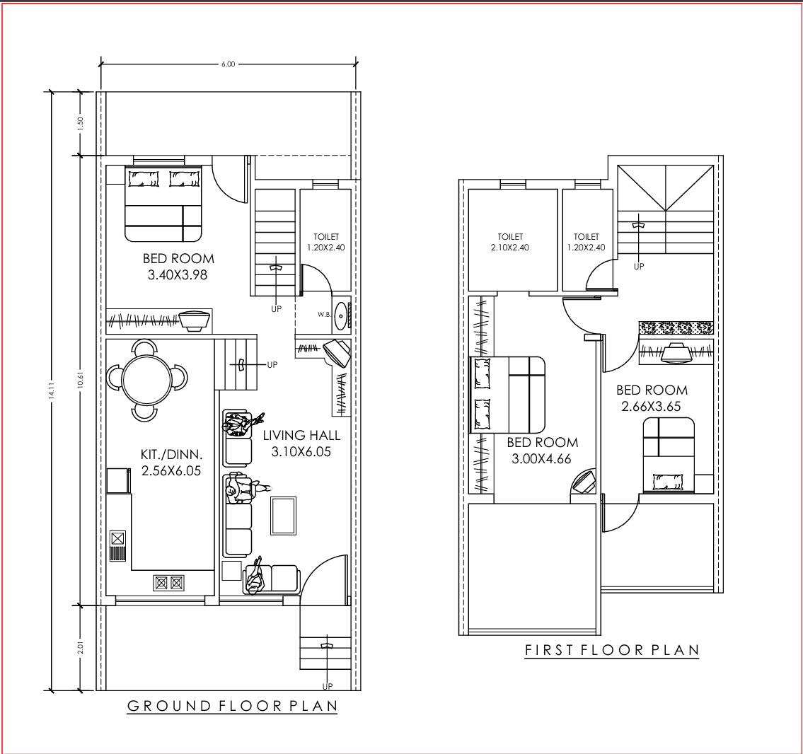
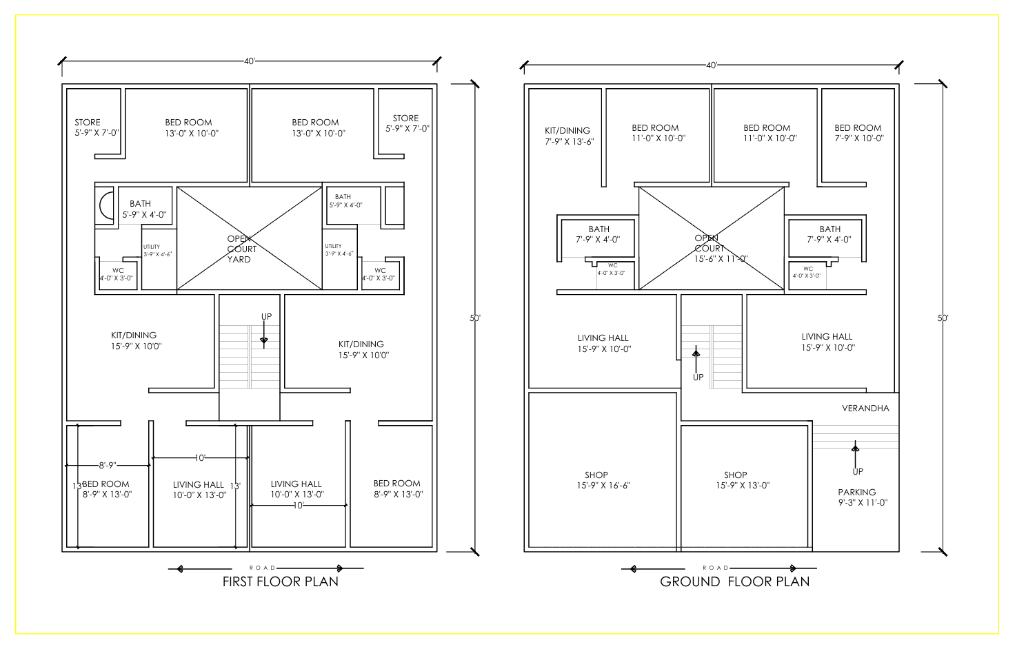
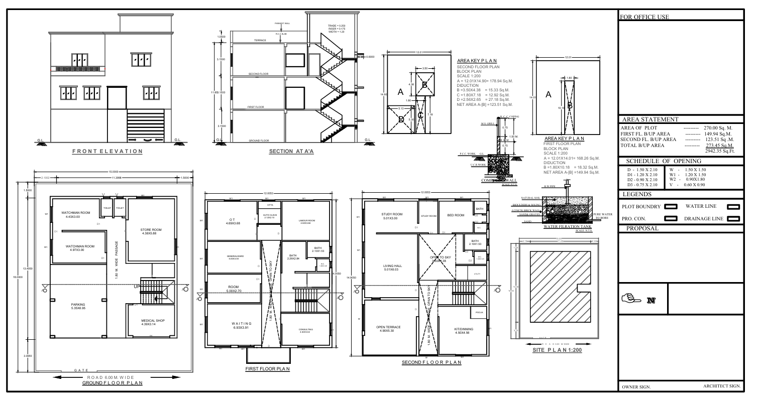
Detailed and Visually Engaging Floor Plans
At Grazign, we specialize in creating high-quality, accurate, and visually compelling floor plans that enhance clarity and appeal for property listings, architectural designs, and renovation projects. Using advanced tools and industry expertise, we ensure every floor plan is crafted with precision and professionalism.
We understand the importance of a well-designed floor plan in showcasing a property’s layout and potential. Whether you’re a real estate agent, property developer, architect, or homeowner, our dedicated team delivers customized floor plans tailored to your specific needs.
Our process starts with precise data collection, including measurements and key specifications of the space. We then utilize cutting-edge software to create detailed, true-to-scale floor plans that accurately represent dimensions, layouts, and essential property features. Additional elements such as furniture placement, room labels, and annotations can be incorporated to enhance clarity and presentation.
With Grazign’s professional floor plan services, you can effectively communicate the flow, functionality, and potential of your space to buyers, clients, or contractors. Our commitment to accuracy ensures every detail is captured, allowing viewers to visualize the space effortlessly and make informed decisions







